СтатьиОбъектные решения в фасадных системах завода «Реалит»: за гранью стандартов!
Современная архитектура в последние годы очень богата разнообразием стилей. Строятся новые здания самого невероятного дизайна и сложности: от тяжелых на вид, до легких полупрозрачных. Фасады сооружений поражают своей красотой и легкостью, что отчасти достигается с помощью архитектурных систем алюминиевых профилей, которые стремительными темпами набирают популярность. Но сложность современных зданий вынуждает расширять рамки стандартных систем и дополнять их новыми объектными решениями.
Вторым нестандартным объектом стал ЖК «Gazoil City», фасад которого имеет сложную форму. Для данного объекта был разработан новый узел и группа профилей, позволяющая на элементном фасаде реализовать острый угол. Также для этого объекта было предложено решение для входной группы с двойным остеклением тамбура.
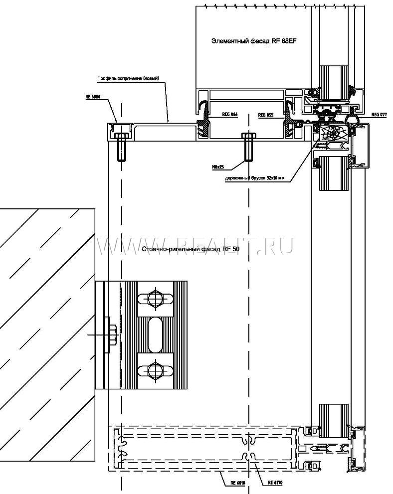
Еще одним объектом, для которого также была произведена адаптация серии элементного фасада системы РЕАЛИТ, стал многофункциональный комплекс на Поклонной горе. Специально для этого здания площадью остекления 15000 кв.м. был разработан узел сопряжения стоечно-ригельного фасада RF 50 (стойка RE 6010 на первых этажах здания, до 7 м) с элементным фасадом (все остальные этажи).
Поскольку фасад здания имеет не только плоские участки, но и полукруглые, в которых угол между двумя соседними модулями составляет 50. Стандартными решениями допускается угол между модулями до 2,50, поэтому специально для данного объекта был разработан новый узел, а также освоено производство нового уплотнителя и штапика для угла перелома 50 между элементами.
Конструкторское бюро завода «Реалит» также разрабатывает объектные решения для других серий собственной архитектурной системы. В частности, было предложено решение для объекта в Москве по сопряжению вентилируемого фасада и стоечно-ригельного фасада RF50. А для объекта в Белоруссии с радиусным фасадом было разработано решение на основе полуструктурного фасада RF 50 SSG системы РЕАЛИТ. Также для конкретных объектов предлагались решения по улучшению теплотехнических характеристик наших систем и подбор параметров для решения узлов примыкания. Особенно это касалось объектов в Республике Беларусь, где нормы сопротивления теплопередачи выше, чем в России. | |
|
















